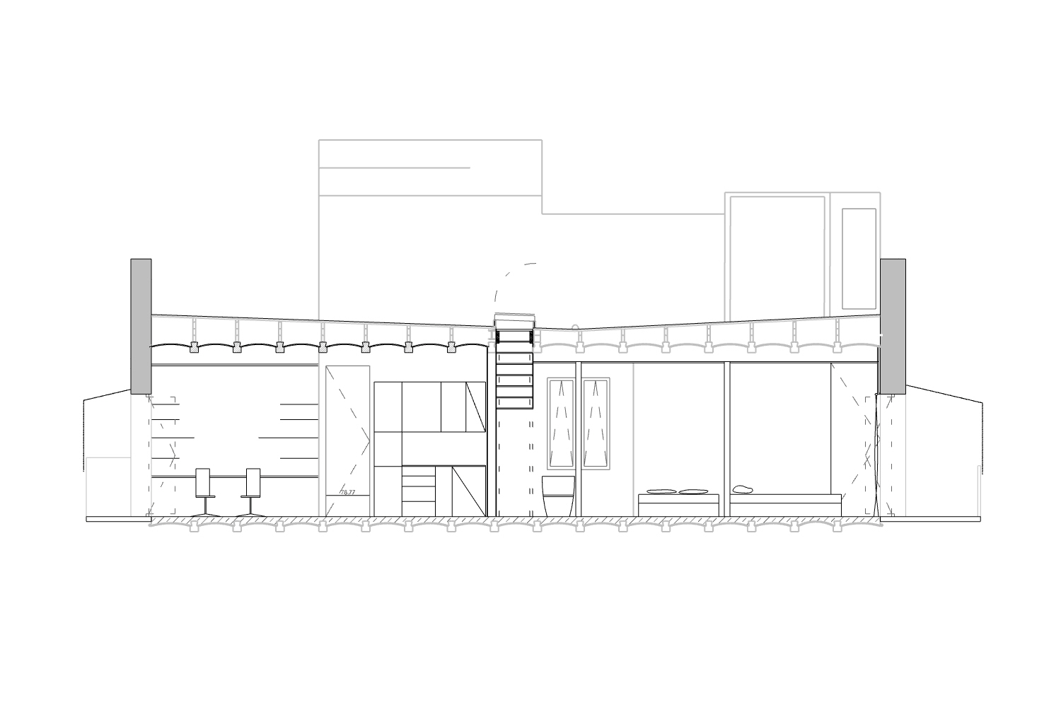
Stairway to heaven

A tie between two worlds, inside and out, new and old, white and color.

For this project the main requirement was to create a flowing space that breathed calmness and tranquility. The world of sleep dressed in white while the time of day filled with the colour of memory.

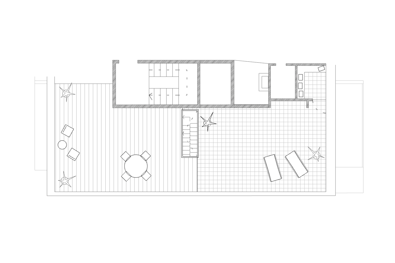
To do so it was decided to divide the flat into two parts on all fronts joined by a central staircase that would allow to flow from place to place freely and easily.

Location

Barcelona

Type

Reconstruction

Colaboration

Juliana Millan

Category

_built, Architecture, Residential, x_Spain