Klubovna

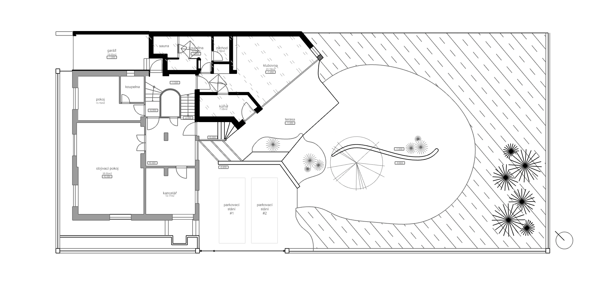
A family house located in a small village near Prague was to have a new makeover. The original garage was to make way for a new common space with dining area and a small spa.

Orienting the the main facade of the extension 40° off axis to face directly south helped achieve many objectives: optically for the new structure to not occupy more area then the existing one, maximise the visual feeling of the size of the garden and make it the sunniest place in the house.

Location

Mnichovice, Czech Republic

Client

private client

Architect

Philip Mountain - master plan

colaboration

Eva Hlavackova - interior & exterior

project

2015

realization

2016-2017

Category

_built, Architecture, Residential, x_Czech Republic